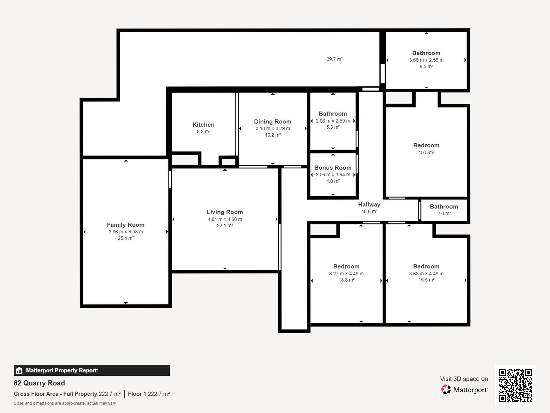
Generous and welcoming, this solid 3-bedroom home sits proudly on a large 1,147sqm corner block. Every room in this home offers exceptional space and comfort. All three bedrooms feature built-in robes, with the main living area flowing through to the dining and kitchen zone.
The well-equipped kitchen includes ample storage, a dishwasher, and a large breakfast bar that easily seats four. A separate family room opens through glass doors to a light-filled sunroom that wraps around the back of the home, capturing the beautiful northerly aspect.
The home offers a family bathroom with shower, bath and vanity, a centrally located powder room, plus a second shower, toilet and corner bath in the laundry. Ducted evaporative air conditioning and gas heating provide year-round comfort.
Outside, the property continues to impress with a large fernery, shade house, garden shed, triple car garage, and a huge workshop complete with wood heater. The shady, private backyard is framed by sturdy brick fencing—perfect for relaxed living and entertaining.
Features
- Evaporative Cooling
- Gas Heating
- Fully Fenced
- Outdoor Entertainment Area
- Remote Garage
- Shed
- Built-in Wardrobes
- Dishwasher
- Workshop

















































